Williams Way Blandford Forum
As both client and designer, JMP Architecture have developed the designs for the remodeling of all the interior and gardens spaces.
Within the house the kitchen was increased in footprint to extend it across the back of the property, providing a kitchen dinner, with French doors to the garden, opposite a large, glazed sliding door to the lounge. The lounge had a new fireplace and built in TV / media station with bookcases installed. To the first floor, the bathroom was remodeled with an ‘L’ shaped shower/bath and built in WC and vanity units. Full height tiling to the shower and half height to the rest of the room, together with new floor tiling and heated towel rail. Flooring was replaced throughout the property, tumbled marble tiles to the kitchen giving a rustic yet modern feel, wood flooring to the lounge, stair runner and carpets to the bedrooms. All giving a hybrid traditional / modern, light and spacious feeling throughout.
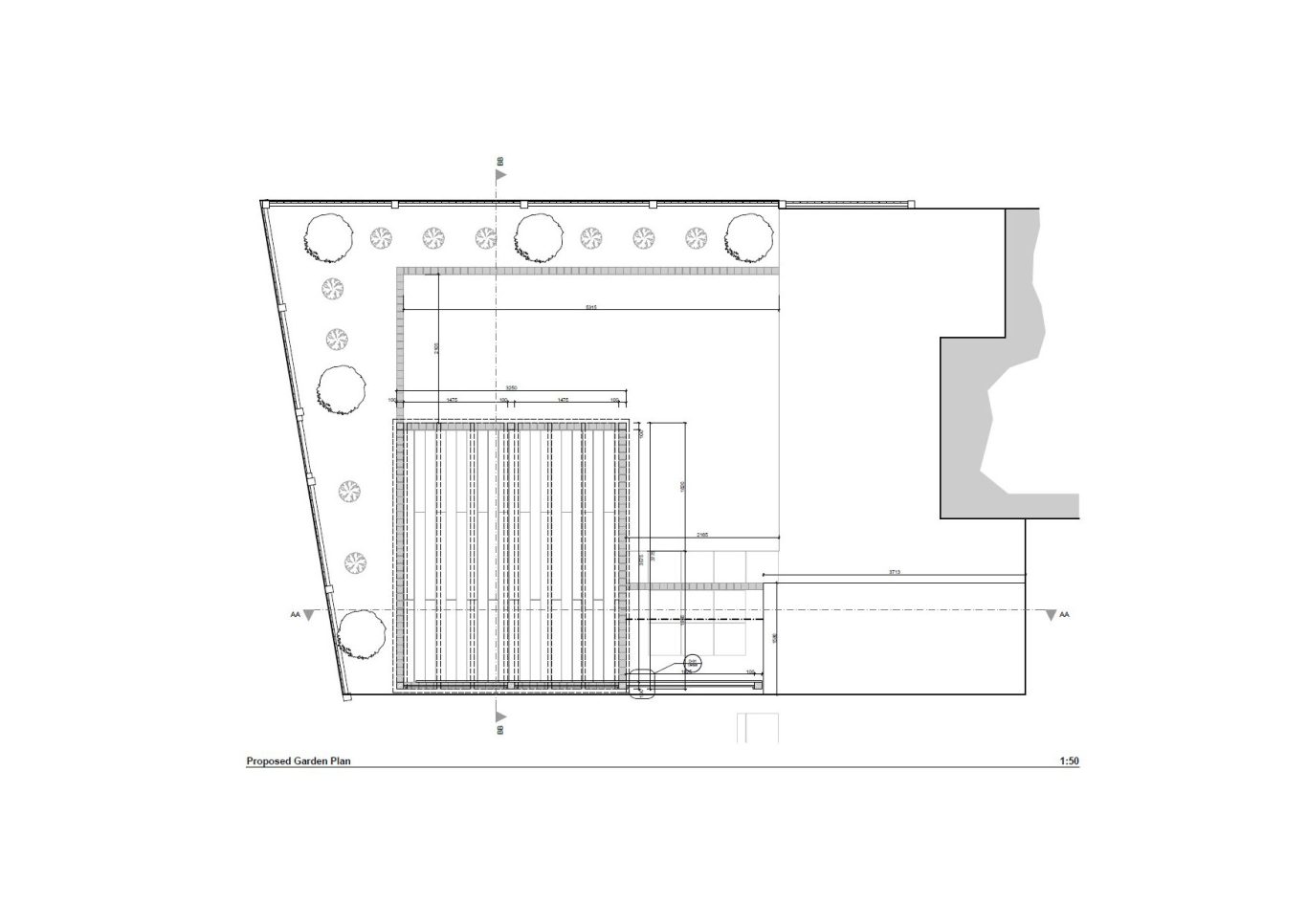
To the garden, a desire for a low maintenance entertaining space was delivered in the form of a gazebo, feature fence rapping around an outdoor lounge / dinning decked area. Adjacent to a dedicated BBQ space, linked using the feature fencing. The perimeter feather edge fencing was replaced and painted in a stone colour to contrast to the slate colour of the feature fencing and gazebo. Wide gravel boarders were installed with box hedge balls between olive trees in planters, for a mediterranean feel. The remaining area was laid to lawn, edged with granite cobbles.






